Référence: 115339
ACIER Prélaqué RAL 9005, 75/100, Dev. 350, Lg. 1500
MATIÈRE : AcierFINITION : ACIER Prélaqué RALÉPAISSEUR : 75/100QUANTITÉ : 1PRÉ-LAQUAGE : 9005
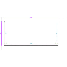
SVG de la vue dépliée pour le produit ID 115434
Téléchargement (2.21k)SVG avec côtes de la vue dépliée pour le produit ID 115434
Téléchargement (2.21k)Images déplié avec côtes pour le produit ID 115434
Téléchargement (16.54k)Référence: 115339
MATIÈRE : AcierFINITION : ACIER Prélaqué RALÉPAISSEUR : 75/100QUANTITÉ : 1PRÉ-LAQUAGE : 9005
Référence: 113943
MATIÈRE : AluminiumFINITION : Aluminium Chêne Doré SatineÉPAISSEUR : 15/10QUANTITÉ : 1
Référence: 115156
MATIÈRE : AluminiumFINITION : ALUMINIUM Prélaqué Sablé ÉPAISSEUR : 15/10QUANTITÉ : 1PRÉ-LAQUAGE : 2100 - Sablé
Référence: 115769
MATIÈRE : AluminiumFINITION : ALUMINIUM Anodisé ASÉPAISSEUR : 10/10QUANTITÉ : 1
Référence: 114250
MATIÈRE : GalvaFINITION : GALVAÉPAISSEUR : 15/10QUANTITÉ : 1
Référence: 114482
MATIÈRE : AluminiumFINITION : ALUMINIUM BrutÉPAISSEUR : 20/10QUANTITÉ : 1
Référence: 115003
MATIÈRE : AluminiumFINITION : ALUMINIUM Prélaqué RalÉPAISSEUR : 15/10QUANTITÉ : 1PRÉ-LAQUAGE : 7039 - Satiné
Référence: 115725
MATIÈRE : AluminiumFINITION : ALUMINIUM DamierÉPAISSEUR : Damier 2-3.5QUANTITÉ : 1
Référence: 114969
MATIÈRE : AluminiumFINITION : ALUMINIUM Prélaqué Sablé ÉPAISSEUR : 15/10QUANTITÉ : 1PRÉ-LAQUAGE : 7016 - Sablé
Référence: 114432
MATIÈRE : AluminiumFINITION : ALUMINIUM Prélaqué RalÉPAISSEUR : 10/10QUANTITÉ : 1PRÉ-LAQUAGE : 9010 - Brillant
Référence: 115397
MATIÈRE : AluminiumFINITION : ALUMINIUM PostLaqué 1FaceÉPAISSEUR : 15/10QUANTITÉ : 1LAQUAGE : 7044 - Satiné
Référence: 114576
MATIÈRE : AluminiumFINITION : ALUMINIUM Prélaqué RalÉPAISSEUR : 15/10QUANTITÉ : 1PRÉ-LAQUAGE : 9010 - Satiné
Référence: 115497
MATIÈRE : AluminiumFINITION : ALUMINIUM BrutÉPAISSEUR : 15/10QUANTITÉ : 1
Référence: 115756
MATIÈRE : AluminiumFINITION : ALUMINIUM Anodisé ASÉPAISSEUR : 15/10QUANTITÉ : 1
Référence: 115774
MATIÈRE : AluminiumFINITION : ALUMINIUM Prélaqué RalÉPAISSEUR : 15/10QUANTITÉ : 1PRÉ-LAQUAGE : 7022 - Satiné
Référence: 115071
MATIÈRE : GalvaFINITION : GALVA Perforé R10 T13ÉPAISSEUR : 15/10QUANTITÉ : 1