Référence: 114789
ALUMINIUM Prélaqué Ral 9006 - Piedra, 15/10, Dev. 357.5, Lg. 1600
MATIÈRE : AluminiumFINITION : ALUMINIUM Prélaqué RalÉPAISSEUR : 15/10QUANTITÉ : 1PRÉ-LAQUAGE : 9006 - Piedra
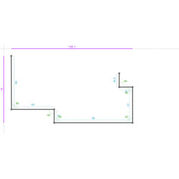
SVG de la vue dépliée pour le produit ID 115602
Téléchargement (3.01k)SVG avec côtes de la vue dépliée pour le produit ID 115602
Téléchargement (3.01k)Images déplié avec côtes pour le produit ID 115602
Téléchargement (18.6k)Référence: 114789
MATIÈRE : AluminiumFINITION : ALUMINIUM Prélaqué RalÉPAISSEUR : 15/10QUANTITÉ : 1PRÉ-LAQUAGE : 9006 - Piedra
Référence: 115137
MATIÈRE : AluminiumFINITION : ALUMINIUM Prélaqué RalÉPAISSEUR : 15/10QUANTITÉ : 1PRÉ-LAQUAGE : 9016 - Satiné
Référence: 115460
MATIÈRE : AluminiumFINITION : ALUMINIUM Prélaqué RalÉPAISSEUR : 15/10QUANTITÉ : 1PRÉ-LAQUAGE : 7022 - Satiné
Référence: 115282
MATIÈRE : AluminiumFINITION : ALUMINIUM BrutÉPAISSEUR : 15/10QUANTITÉ : 1
Référence: 115806
MATIÈRE : AluminiumFINITION : ALUMINIUM Prélaqué RalÉPAISSEUR : 15/10QUANTITÉ : 1PRÉ-LAQUAGE : 7015 - Satiné
Référence: 114799
MATIÈRE : AluminiumFINITION : ALUMINIUM Prélaqué Sablé ÉPAISSEUR : 15/10QUANTITÉ : 1PRÉ-LAQUAGE : 9005 - Sablé
Référence: 113945
MATIÈRE : AluminiumFINITION : ALUMINIUM BrutÉPAISSEUR : 30/10QUANTITÉ : 1
Référence: 115675
MATIÈRE : GalvaFINITION : GALVAÉPAISSEUR : 20/10QUANTITÉ : 1
Référence: 115814
MATIÈRE : AluminiumFINITION : ALUMINIUM PostLaqué 2FacesÉPAISSEUR : 20/10QUANTITÉ : 1LAQUAGE : Autre
Référence: 113837
MATIÈRE : AluminiumFINITION : ALUMINIUM Prélaqué RalÉPAISSEUR : 15/10QUANTITÉ : 1PRÉ-LAQUAGE : 7016 - Satiné
Référence: 114394
MATIÈRE : AluminiumFINITION : ALUMINIUM BrutÉPAISSEUR : 20/10QUANTITÉ : 1
Référence: 115822
MATIÈRE : AcierFINITION : ACIER BrutÉPAISSEUR : 20/10QUANTITÉ : 1
Référence: 115344
MATIÈRE : AcierFINITION : ACIER BrutÉPAISSEUR : 50/10QUANTITÉ : 1
Référence: 115223
MATIÈRE : AluminiumFINITION : ALUMINIUM Prélaqué RalÉPAISSEUR : 15/10QUANTITÉ : 1PRÉ-LAQUAGE : 9016 - Brillant
Référence: 114108
MATIÈRE : AluminiumFINITION : ALUMINIUM BrutÉPAISSEUR : 10/10QUANTITÉ : 1
Référence: 115672
MATIÈRE : AluminiumFINITION : ALUMINIUM Prélaqué RalÉPAISSEUR : 15/10QUANTITÉ : 1PRÉ-LAQUAGE : 9016 - Brillant