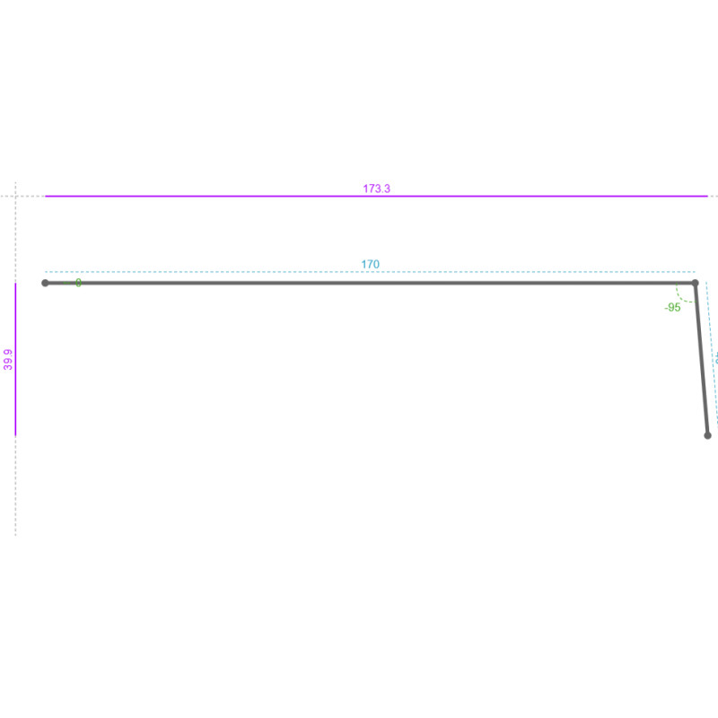
Référence: 107879
GALVA, 20/10, Dev. 278, Lg. 200
MATIÈRE : GalvaFINITION : GALVAÉPAISSEUR : 20/10QUANTITÉ : 1
SVG de la vue dépliée pour le produit ID 108718
Téléchargement (2.4k)SVG avec côtes de la vue dépliée pour le produit ID 108718
Téléchargement (2.81k)Images déplié avec côtes pour le produit ID 108718
Téléchargement (16.73k)Référence: 107879
MATIÈRE : GalvaFINITION : GALVAÉPAISSEUR : 20/10QUANTITÉ : 1
Référence: 108065
MATIÈRE : GalvaFINITION : GALVAÉPAISSEUR : 20/10QUANTITÉ : 1
Référence: 107692
MATIÈRE : AluminiumFINITION : ALUMINIUM Prélaqué RalÉPAISSEUR : 15/10QUANTITÉ : 1PRÉ-LAQUAGE : 7035 - Satiné
Référence: 107762
MATIÈRE : AcierFINITION : ACIER PostLaqué 2FacesÉPAISSEUR : 15/10QUANTITÉ : 1LAQUAGE : 9005 - Satiné
Référence: 107068
MATIÈRE : AluminiumFINITION : ALUMINIUM Anodisé ASÉPAISSEUR : 20/10QUANTITÉ : 1
Référence: 108089
MATIÈRE : AluminiumFINITION : Aluminium Chêne Doré SatineÉPAISSEUR : 15/10QUANTITÉ : 1
Référence: 108382
MATIÈRE : AluminiumFINITION : ALUMINIUM DamierÉPAISSEUR : Damier 2-3,5QUANTITÉ : 1
Référence: 106258
MATIÈRE : AluminiumFINITION : ALUMINIUM Prélaqué RalÉPAISSEUR : 15/10QUANTITÉ : 1PRÉ-LAQUAGE : 9010 - Satiné
Référence: 106198
MATIÈRE : AluminiumFINITION : ALUMINIUM Prélaqué RalÉPAISSEUR : 15/10QUANTITÉ : 1PRÉ-LAQUAGE : 9016 - Satiné
Référence: 106751
MATIÈRE : GalvaFINITION : GALVAÉPAISSEUR : 15/10QUANTITÉ : 1
Référence: 106429
MATIÈRE : AcierFINITION : ACIER Prélaqué RALÉPAISSEUR : 75/100QUANTITÉ : 1PRÉ-LAQUAGE : 9005
Référence: 108605
MATIÈRE : AcierFINITION : ACIER PostLaqué 1FaceÉPAISSEUR : 20/10QUANTITÉ : 1LAQUAGE : 9004 - Satiné
Référence: 106563
MATIÈRE : AluminiumFINITION : ALUMINIUM PostLaqué 1FaceÉPAISSEUR : 20/10QUANTITÉ : 1LAQUAGE : 7037 - Satiné
Référence: 108027
MATIÈRE : GalvaFINITION : GALVAÉPAISSEUR : 30/10QUANTITÉ : 1
Référence: 106541
MATIÈRE : AluminiumFINITION : ALUMINIUM PostLaqué 2FacesÉPAISSEUR : 20/10QUANTITÉ : 1LAQUAGE : 7037 - Satiné
Référence: 108410
MATIÈRE : AluminiumFINITION : ALUMINIUM Prélaqué Sablé ÉPAISSEUR : 15/10QUANTITÉ : 1PRÉ-LAQUAGE : 7016 - Sablé