- Neuf
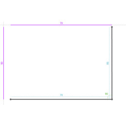
SVG de la vue dépliée pour le produit ID 108925
Téléchargement (1.95k)SVG avec côtes de la vue dépliée pour le produit ID 108925
Téléchargement (1.95k)Images déplié avec côtes pour le produit ID 108925
Téléchargement (18.18k)Référence: 107835
MATIÈRE : AluminiumFINITION : ALUMINIUM Prélaqué RalÉPAISSEUR : 15/10QUANTITÉ : 1PRÉ-LAQUAGE : 7035 - Satiné
Référence: 106534
MATIÈRE : AcierFINITION : ACIER BrutÉPAISSEUR : 30/10QUANTITÉ : 1
Référence: 107636
MATIÈRE : AluminiumFINITION : ALUMINIUM Prélaqué RalÉPAISSEUR : 10/10QUANTITÉ : 1PRÉ-LAQUAGE : 7016 - Satiné
Référence: 107705
MATIÈRE : AluminiumFINITION : ALUMINIUM Prélaqué Sablé ÉPAISSEUR : 15/10QUANTITÉ : 1PRÉ-LAQUAGE : 2100 - Sablé
Référence: 107317
MATIÈRE : AluminiumFINITION : ALUMINIUM Prélaqué RalÉPAISSEUR : 15/10QUANTITÉ : 1PRÉ-LAQUAGE : 9005 - Satiné
Référence: 108786
MATIÈRE : AluminiumFINITION : ALUMINIUM PostLaqué 1FaceÉPAISSEUR : 40/10QUANTITÉ : 1LAQUAGE : 8003 - Satiné
Référence: 108928
MATIÈRE : AluminiumFINITION : ALUMINIUM Prélaqué RalÉPAISSEUR : 15/10QUANTITÉ : 1PRÉ-LAQUAGE : Blanc Technal
Référence: 108460
MATIÈRE : AluminiumFINITION : ALUMINIUM Anodisé ASÉPAISSEUR : 10/10QUANTITÉ : 1
Référence: 107868
MATIÈRE : AluminiumFINITION : ALUMINIUM PostLaqué 2FacesÉPAISSEUR : 15/10QUANTITÉ : 1LAQUAGE : RAL 252 METALLISE MAT YW284F
Référence: 106833
MATIÈRE : GalvaFINITION : GALVAÉPAISSEUR : 10/10QUANTITÉ : 1
Référence: 107403
MATIÈRE : AluminiumFINITION : ALUMINIUM Prélaqué RalÉPAISSEUR : 10/10QUANTITÉ : 1PRÉ-LAQUAGE : 9010 - Brillant
Référence: 108414
MATIÈRE : AluminiumFINITION : ALUMINIUM Prélaqué Sablé ÉPAISSEUR : 15/10QUANTITÉ : 1PRÉ-LAQUAGE : 7016 - Sablé
Référence: 106896
MATIÈRE : AluminiumFINITION : ALUMINIUM Prélaqué RalÉPAISSEUR : 10/10QUANTITÉ : 1PRÉ-LAQUAGE : 7016 - Satiné
Référence: 108206
MATIÈRE : AluminiumFINITION : ALUMINIUM Prélaqué Sablé ÉPAISSEUR : 15/10QUANTITÉ : 1PRÉ-LAQUAGE : 7016 - Sablé
Référence: 107975
MATIÈRE : AluminiumFINITION : ALUMINIUM Prélaqué RalÉPAISSEUR : 15/10QUANTITÉ : 1PRÉ-LAQUAGE : 9016 - Satiné
Référence: 107670
MATIÈRE : AluminiumFINITION : ALUMINIUM Prélaqué RalÉPAISSEUR : 15/10QUANTITÉ : 1PRÉ-LAQUAGE : 9007 - Satiné